サンプル7

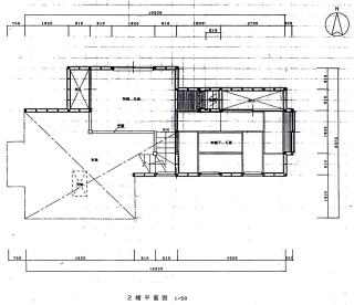
特選中古売別荘一階平面図二階平面図暖炉玄関
価格
1,150万円
別荘
間取
3LDK
所在地 群馬県吾妻郡嬬恋村大字鎌原  嬬恋村鎌原別荘
交通
築年月 新築/中古
面積 100m² 計測方式
バルコニー 向き
建物階数 部屋階数
建物構造 木造
管理形態 自主管理  管理人巡回  管理組合無
間取内容
駐車場 取引態様
引渡/入居時期 現況
地目 宅地 用途地域 第一種低層住居専用地域
都市計画 市街化区域 地勢 高台
土地面積 100m² 土地面積計測方式 公簿
私道負担面積 100m²
セットバック セットバック量 100m²
建ぺい率 100% 容積率 100%
土地権利 所有権 接道状況 一方
国土法届出
周辺環境
設備・条件 プロパンガス 排水浄化槽
物件番号 001
自社物 自社物 状態 売出中
※物件掲載内容と現況に相違がある場合は現況を優先と致します。

問合せ先

寿産業株式会社
〒377-0008 群馬県渋川市渋川1601番地1
TEL 0279-22-1710
お問い合わせメールアドレス:web@akagi-haruna.com

問合せフォーム

お名前(必須)

メールアドレス(必須)

電話番号(必須)

題名

ご希望内容をチェックしてください。

メッセージ本文